The Fox Den House Plan — 3,158 Sq Ft Modern Ranch with Office & Garage

$395.00

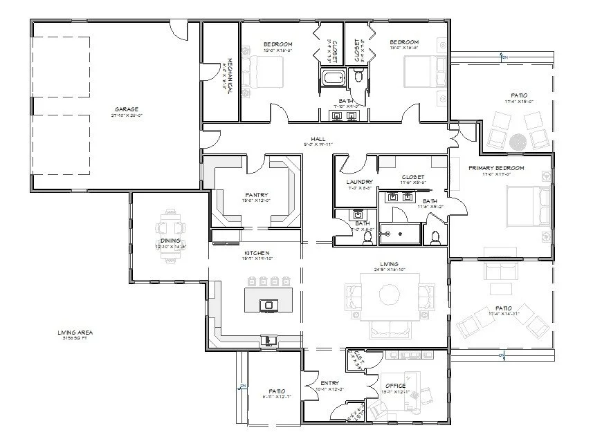
The Fox Den is a thoughtfully designed modern ranch home offering over 3,100 square feet of functional single-level living, ideal for families seeking space, comfort, and everyday practicality.

This plan features a spacious open-concept kitchen, dining, and living area that creates a natural gathering place for entertaining and daily life. A dedicated home office provides flexibility for remote work or study, while the split-bedroom layout ensures privacy for the primary suite.

A standout feature of the Fox Den is the garage-to-pantry pass-through, creating a mudroom-style transition that simplifies grocery unloading and daily organization. Multiple covered outdoor living areas expand usable space and enhance the home’s connection to the outdoors.

Plan Features

  • 3,158 sq ft Living Area

  • 3 Bedrooms

  • 3 Bathrooms

  • Dedicated Home Office

  • Split Bedroom Layout

  • Oversized Attached 2-Car Garage

  • Walk-Through Pantry from Garage

  • Open-Concept Kitchen / Dining / Living

  • Multiple Covered Outdoor Living Spaces

What’s Included

This Basic Plan Package includes planning-level documentation suitable for design review, builder pricing, and early construction planning.

Final engineered drawings and permit-ready documentation may be required based on local building codes.

The Fox Den is a thoughtfully designed modern ranch home offering over 3,100 square feet of functional single-level living, ideal for families seeking space, comfort, and everyday practicality.

This plan features a spacious open-concept kitchen, dining, and living area that creates a natural gathering place for entertaining and daily life. A dedicated home office provides flexibility for remote work or study, while the split-bedroom layout ensures privacy for the primary suite.

A standout feature of the Fox Den is the garage-to-pantry pass-through, creating a mudroom-style transition that simplifies grocery unloading and daily organization. Multiple covered outdoor living areas expand usable space and enhance the home’s connection to the outdoors.

Plan Features

  • 3,158 sq ft Living Area

  • 3 Bedrooms

  • 3 Bathrooms

  • Dedicated Home Office

  • Split Bedroom Layout

  • Oversized Attached 2-Car Garage

  • Walk-Through Pantry from Garage

  • Open-Concept Kitchen / Dining / Living

  • Multiple Covered Outdoor Living Spaces

What’s Included

This Basic Plan Package includes planning-level documentation suitable for design review, builder pricing, and early construction planning.

Final engineered drawings and permit-ready documentation may be required based on local building codes.